For Sale
£675,000
Dyke Road, Hove
Property Summary
A rare opportunity to acquire a generous south-facing plot with full planning permission granted for a substantial detached family home in one of Hove’s most sought-after locations.Tucked away behind Dyke Road, this exclusive plot is approached via a long private driveway, offering...
Land
Book a viewing
Book a viewing
Please complete the form below and a member of staff will be in touch shortly.
Description
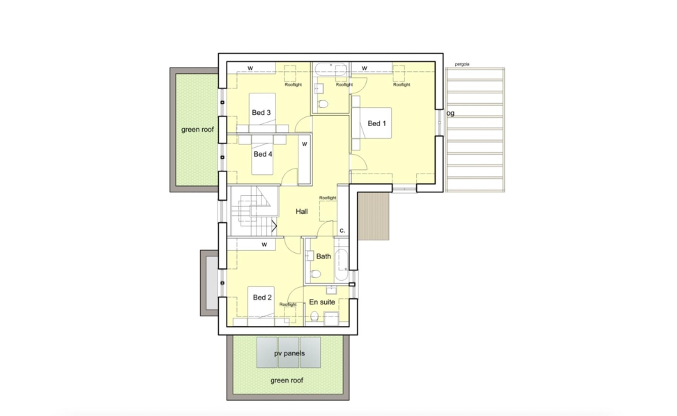
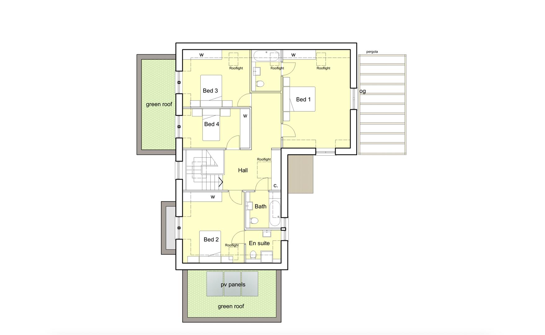
Floorplans
Gallery
Map
Description
Property Features
- Planning Reference BH2025/00936
Property listed with...
Foster & Co, Hove

Interested in this property?
Your next step is choosing an option below. Our property professionals are happy to help you book a viewing, make an offer or answer questions about the local area.
Book a viewing
Book a viewing
Please complete the form below and a member of staff will be in touch shortly.
Have a property to sell?
Our free, no-obligation property valuations are reliable, realistic and never inflated. Start with a quick online estimate or book an expert valuation and we’ll meet you at your property.
Floorplans
Gallery
Map




















